2 Raum Wohnung in zentraler Lage

08412 Werdau, Etagenwohnung zur Miete

Anlagen / Links

Kontaktdaten

Objektdaten

  • Objekt-ID
    5/248/11/4
  • Objekttypen
    Etagenwohnung, Wohnung
  • Adresse
    Alexander-von-Humboldt-Straße 11
    08412 Werdau
    (zentrumsnah)
  • Etage
    1
  • Wohnungsnummer
    5/248/11/4
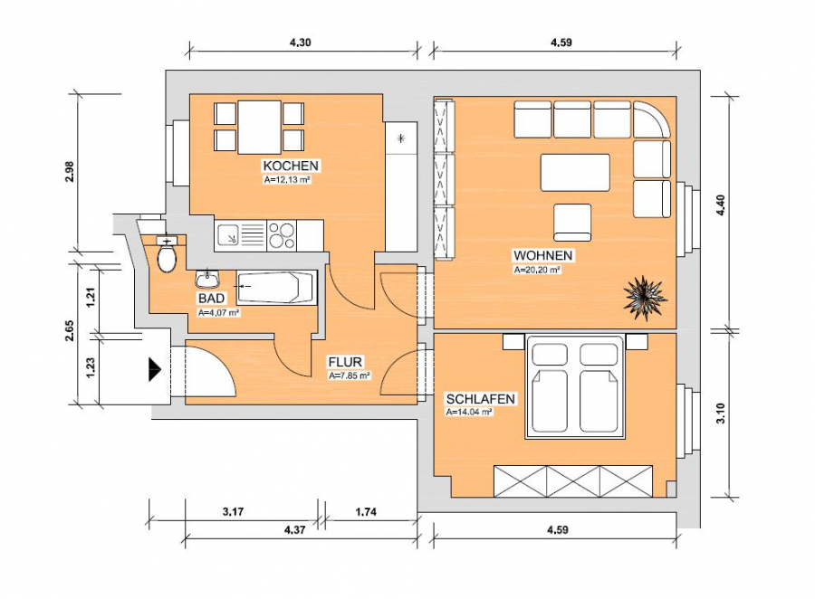
  • Wohnfläche ca.
    59,58 m²
  • Zimmer
    2
  • Wesentlicher Energieträger
    Fernwärme
  • Baujahr
    1920
  • Verfügbar ab
    sofort
  • Kaution
    600,00 EUR
  • Nettokaltmiete
    300,00 EUR
  • Miete pro m²
    5,04 EUR
  • Nebenkosten
    119,00 EUR
  • Heizkosten
    131,00 EUR
  • Warmmiete
    550,00 EUR (zzgl. Heizkosten)

Ausstattung / Merkmale

  • ✓ Badewanne
  • ✓ Kunststoffboden

Energieausweis

  • Energieausweistyp
    Verbrauchs­ausweis
  • Ausstellungsdatum
    10.01.2018
  • Gültig bis
    01-2028
  • Gebäudeart
    Wohngebäude
  • Baujahr
    1920
  • Primärenergieträger
    Fernwärme
  • Endenergie­verbrauch
    100,10 kWh/(m²·a)
  • Warmwasser enthalten
    ja
0 25 50 75 100 125 150 175 200 225 250+ H G F E D C B A A+ H G F E D C B A A+ Endenergieverbrauch 100,10 kWh/(m²·a)

Objekt­beschreibung

Ausstattung

Die großzügig geschnittene 2 Raum Wohnung verfügt über helle Räume und ist ideal für Paare geeignet.

Sonstiges

Alle Angaben sind ohne Gewähr!

Lage

Das Mietobjekt befindet sich unweit des Werdauer Stadtzentrums. Einkaufsmöglichkeiten und Arztpraxen befinden sich im direkten Umfeld. Schulen und Kindertagesstätten sind gut zu Fuß erreichbar. Öffentlichen Verkehrsanbindungen sind fußläufig in ca. 5 Minuten erreichbar.

Direktanfrage

* Pflichtangaben
 SSL-verschlüsselt